Back to Search
28455 67th Dr, Peoria, AZ 85383
28455 67th Dr, Peoria, AZ 85383 3D Tour
28455 67th Dr, Peoria, AZ 85383 Explore 3D Tour
28455 67th Dr, Peoria, AZ 85383
28455 67th Dr, Peoria, AZ 85383
28455 67th Dr, Peoria, AZ 85383
28455 67th Dr, Peoria, AZ 85383

28455 67th Dr Peoria, AZ 85383

$1,069,000

ACTIVE
Beds
4
Baths
4
Sqft
4,085
Acres
0.28
Year
2013
Days on Site
45
Property Type
Residential
Sub Type
Single Family
Per Square Foot
$262
Date Listed
Dec 21, 2025

Description of 28455 67th Dr, Peoria, AZ 85383

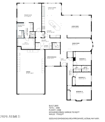
Listing details for 28455 67th Dr, Peoria, AZ 85383 : Priced to Sell! Home with unique features! Upgraded, customized Camelot Home in exclusive gated community! 3 bdrms, private office w/built-ins, on lower level. Huge bonus room(4th bdrm or?) upper level has wetbar, a bar frig, and a 1/2 bath. The 2nd bonus rm off garage has mirrored wall, could be exercise, dance/art studio or? Huge 4+ garage w/room for boat or ATV, Gated private courtyard entrance w/ gas fireplace. Lrg open kitchen w/island. New custom natural gas fireplace/media wall in living area. Plantation shutters too! Master has exit door to East facing covered patio with Pergola extension and grilling station. An extra storage room near back yard and garage for all the extra space you need. Pool with waterfalls, yard is large, plenty of space to play, Beautifully landscaped. Built in fire sprinkler system, steel lock/secruity screens, alarm system, (secret safe room). Newley painted exterior and interior. Wired for elec car charger. Miles of sonoran desert hiking trails, play parks and more near by!
Listing Updated : 01-31-2026 at 12:46 AM EST
Listed By : Chuck Bills, 602-882-3582, RE/MAX Fine Properties
Source :

ARMLS, MLS#: 6960123

All information should be verified by the recipient and none is guaranteed as accurate by ARMLS.

Home Details
28455 67th Dr, Peoria, AZ 85383
Status
Active
MLS #ID
6960123
Price
$1,069,000
Bedrooms
4
Bathrooms
4
Square Footage
4,085
Acres
0.28
Year
2013
Days on Site
45
Property Type
Residential
Property Sub Type
Single-Family
Price per Sq Ft
$262
Date Listed
Dec 21, 2025
Community Information for 28455 67th Dr, Peoria, AZ 85383
Address
28455 67th Dr
State
Arizona
Zip Code 85383
School Districts
High School District Deer Valley Unified District
Utilities
Sewer
Public Sewer
Water Source
City Water
Interior
Interior Features
Walk-in Pantry, High Speed Internet, Granite Counters, Double Vanity, Master Downstairs, Eat-in Kitchen, Breakfast Bar, 9+ Flat Ceilings, Wet Bar, Kitchen Island, Pantry, Full Bth Master Bdrm, Separate Shwr & Tub and Tub with Jets
Heating
Forced Air and Natural Gas
Cooling
Central Air, Ceiling Fan(s) and Programmable Thmstat
Fireplace
No
Exterior
Exterior
Private Street(s), Private Yard, Storage and Built-in Barbecue
Roof
Tile
Garage Spaces
4
Foundation
HOA
Has HOA
Yes
Services included
None
HOA fee
$125 Quarterly
Additional Information
Styles
Ranch
Price per Sq Ft
$262
Builder Name
Camelot Homes
Comments
Home Worth Check

Interested in 28455 67th Dr, Peoria AZ, 85383?

By proceeding, you consent to receive calls, texts and voicemails at the number you provided (may be recorded and may be autodialed and use prerecorded and artificial voices), and email, from Blair Ballin about your inquiry and other home-related matters. Msg/data rates may apply. This consent applies even if you are on a do not call list and is not a condition of any purchase.

Location of 28455 67th Dr, Peoria, AZ 85383

Google Map
Mortgage Calculator
Listing Price
Down Payment
Interest Rate
This beautiful 4 beds 4 baths home is located at 28455 67th Dr, Peoria, AZ 85383 and is listed for sale at $1,069,000.00. This home was built in 2013, contains 4085 square feet of living space, and sits on a 0.28 acre lot. This residential home is priced at $261.69 per square foot.

If you'd like to request a tour or more information on 28455 67th Dr, Peoria, AZ 85383, please call us at 480-233-6433 so that we can assist you in your real estate search. To find homes like 28455 67th Dr, Peoria, AZ 85383, you can search homes for sale in Peoria , or visit the neighborhood of Sonoran Mountain Ranch Parcel 11 , or by 85383 . We are here to help when you're ready to contact us!

Schools Near 28455 67th Dr, Peoria, AZ 85383

Home Details
28455 67th Dr, Peoria, AZ 85383
Status
Active
MLS #ID
6960123
Price
$1,069,000
Bedrooms
4
Bathrooms
4
Square Footage
4,085
Acres
0.28
Year
2013
Days on Site
45
Property Type
Residential
Property Sub Type
Single-Family
Price per Sq Ft
$262
Date Listed
Dec 21, 2025
Community Information for 28455 67th Dr, Peoria, AZ 85383
Address
28455 67th Dr
State
Arizona
Zip Code 85383
School Districts
High School District Deer Valley Unified District
Utilities
Sewer
Public Sewer
Water Source
City Water
Interior
Interior Features
Walk-in Pantry, High Speed Internet, Granite Counters, Double Vanity, Master Downstairs, Eat-in Kitchen, Breakfast Bar, 9+ Flat Ceilings, Wet Bar, Kitchen Island, Pantry, Full Bth Master Bdrm and Separate Shwr & Tub
Heating
Forced Air and Natural Gas
Cooling
Central Air and Ceiling Fan(s)
Fireplace
No
Exterior
Exterior
Private Street(s), Private Yard and Storage
Roof
Tile
Garage Spaces
4
Foundation
HOA
Has HOA
Yes
Services included
None
HOA fee
$125 Quarterly
Additional Information
Styles
Ranch
Price per Sq Ft
$262
Builder Name
Camelot Homes
Comments

Homes Similar to 28455 67th Dr, Peoria, AZ 85383

HomePeoria