Back to Search
1916 Hayden Ln #-, Tempe, AZ 85281
1916 Hayden Ln #-, Tempe, AZ 85281
1916 Hayden Ln #-, Tempe, AZ 85281
1916 Hayden Ln #-, Tempe, AZ 85281
1916 Hayden Ln #-, Tempe, AZ 85281
1916 Hayden Ln #-, Tempe, AZ 85281
1916 Hayden Ln #-, Tempe, AZ 85281

1916 Hayden Ln #- Tempe, AZ 85281

$1,300,000

ACTIVE
Beds
Baths
0
Sqft
Acres
0.63
Year
Days on Site
23
Property Type
Land
Sub Type
Per Square Foot
$1,300,000
Date Listed
Feb 3, 2026

Description of 1916 Hayden Ln #-, Tempe, AZ 85281

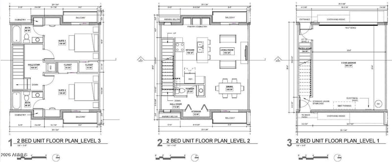
Listing details for 1916 Hayden Ln #-, Tempe, AZ 85281 : READY TO BUILD, PERMITS READY TO BE PULLED. City-approved construction docs ready to go for a 13-unit modern apartment development. Fantastic rental area in Tempe. Hayden Lane Townhomes is planned with (9) 2-bedroom, 2.5-bathroom and (4) 3-bedroom, 2.5-bathroom units. They all have 4 private balconies per unit and each unit includes a two-car garage. The planned redevelopment is a highly compatible infill development of a vacant parcel surrounded mainly by multi-family residential uses in the larger area between McClintock Drive and Smith Road, and University Drive to Apache Boulevard. . The north side of Hayden Lane here has transitioned to exclusively multi-family uses over the last 60 years. Hayden Townhomes is very similar to the existing multi-family in the area. Owner Agent.
Listing Updated : 02-04-2026 at 05:45 PM EST
Listing Provided By : Carrick Sears, 602-327-0325, SVN/Desert Commercial Advisors
Source :

ARMLS, MLS#: 6978717

All information should be verified by the recipient and none is guaranteed as accurate by ARMLS.

Home Details
1916 Hayden Ln #-, Tempe, AZ 85281
Status
Active
MLS #ID
6978717
Price
$1,300,000
Bedrooms
Bathrooms
0
Square Footage
Acres
0.63
Year
Days on Site
23
Property Type
Land
Property Sub Type
Price per Sq Ft
$0
Date Listed
Feb 3, 2026
Community Information for 1916 Hayden Ln #-, Tempe, AZ 85281
Address
1916 Hayden Ln #-
State
Arizona
Zip Code 85281
Schools
Elementary Flora Thew
School Districts
Utilities
Sewer
Sewer - Available and Public Sewer
Water Source
City Franchise
Interior
Fireplace
No
Exterior
Roof
Foundation
HOA
Has HOA
None
Additional Information
Styles
Price per Sq Ft
$0
Comments
Home Worth Check

Interested in 1916 Hayden Ln #-, Tempe AZ, 85281?

By proceeding, you consent to receive calls, texts and voicemails at the number you provided (may be recorded and may be autodialed and use prerecorded and artificial voices), and email, from Blair Ballin about your inquiry and other home-related matters. Msg/data rates may apply. This consent applies even if you are on a do not call list and is not a condition of any purchase.

Location of 1916 Hayden Ln #-, Tempe, AZ 85281

Google Map
Mortgage Calculator
Listing Price
Down Payment
Interest Rate
This beautiful home is located at 1916 Hayden Ln #-, Tempe, AZ 85281 and is listed for sale at $1,300,000.00. This home was built in , contains square feet of living space, and sits on a 0.63 acre lot. This residential home is priced at $0.00 per square foot.

If you'd like to request a tour or more information on 1916 Hayden Ln #-, Tempe, AZ 85281, please call us at 480-233-6433 so that we can assist you in your real estate search. To find homes like 1916 Hayden Ln #-, Tempe, AZ 85281, you can search homes for sale in Tempe , or visit the neighborhood of O C Watson Tract , or by 85281 . We are here to help when you're ready to contact us!

Schools Near 1916 Hayden Ln #-, Tempe, AZ 85281

Home Details
1916 Hayden Ln #-, Tempe, AZ 85281
Status
Active
MLS #ID
6978717
Price
$1,300,000
Bedrooms
Bathrooms
0
Square Footage
Acres
0.63
Year
Days on Site
23
Property Type
Land
Property Sub Type
Price per Sq Ft
$0
Date Listed
Feb 3, 2026
Community Information for 1916 Hayden Ln #-, Tempe, AZ 85281
Address
1916 Hayden Ln #-
State
Arizona
Zip Code 85281
Schools
Elementary Flora Thew
School Districts
Utilities
Sewer
Sewer - Available and Public Sewer
Water Source
City Franchise
Interior
Fireplace
No
Exterior
Roof
Foundation
HOA
Has HOA
None
Additional Information
Styles
Price per Sq Ft
$0
Comments
HomeTempe