Description of 18448 Manzanita Dr, Waddell, AZ 85355
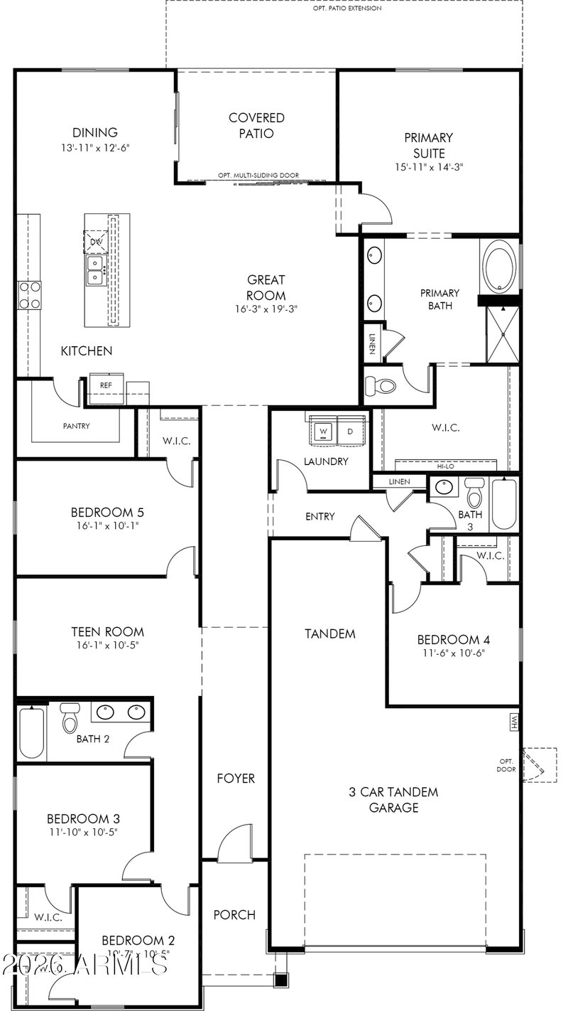
Listing details for 18448 Manzanita Dr, Waddell, AZ 85355 : A Showstopper Single-Level Home, Room for Everyone, Designed for Entertaining! The Lennon offers space, style, and versatility with 5 bedrooms, 3 bathrooms, and a bright open concept living area perfect for gatherings and everyday living. With a dedicated flex space ready to become a playroom, home office, or hobby area, this home is built to adapt to your lifestyle and make entertaining easier than ever. This home offers a SPA Shower, white shaker style cabinets, quartz kitchen counters, kitchen backsplash, natural wood-look tile floor, carpet in bedrooms! INCLUDED-washer, dryer, window blinds, refrigerator and MORE! EXCLUSIVE community amenities! Built with innovative, energy-efficient features designed to help you ENJOY more SAVINGS.
Listing Provided By : Joseph A Elberts, 480-448-4728, Meritage Homes of Arizona, Inc
Source : ARMLS, MLS#: 7020140

All information should be verified by the recipient and none is guaranteed as accurate by ARMLS.