Description of 18007 134th Dr, Sun City West, AZ 85375
Listing details for 18007 134th Dr, Sun City West, AZ 85375 : DON'T MISS OUT ON THIS WELL-CARED FOR and LOVED Sun City West BEAUTY*You will APPRECIATE the UPDATED KITCHEN COUNTERS and sink, APPLIANCES, and raised panel NEUTRAL CABINETS, and pantry*NATURAL LIGHT FLOWS in from the GREAT ROOM*Enclosed sunroom*THREE BEDROOMS with storage in the walk-in closets*UPDATED SECONDAR BATH has WALK IN SHOWER and newer vanity and toilet*OWNER SUITE has newer vanity at bath*Seller has updated half of the ROOF, HVAC (2024), and NEWER WINDOWS, exterior PAINT 2025*EXTRA DEEP GARAGE for golf cart and laundry has NEWER GARAGE DOOR*You will LOVE the GOLF, PICKLEBALL, SWIMMING, WORKOUT ROOMS, and SO MUCH MORE*COME BY and see why YOU WILL WANT TO CALL THIS PLACE YOUR HOME*(Remaining professional photos to be added on active listing date)
Listed By : Rebecca Durfey, 623-297-4536, Keller Williams, Professional Partners
Source : ARMLS, MLS#: 6947142

All information should be verified by the recipient and none is guaranteed as accurate by ARMLS.
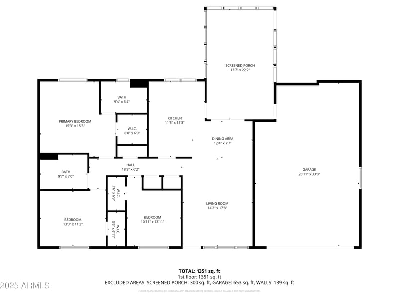
This beautiful 3 beds 2 baths home is located at
18007 134th Dr, Sun City West, AZ 85375 and is listed for sale at $305,000.00. This home was built in 1979, contains 1416 square feet of living space, and sits on a 0.21 acre lot. This residential home is priced at $215.40 per square foot.
If you'd like to request a tour or more information on
18007 134th Dr, Sun City West, AZ 85375, please call us at
480-233-6433 so that we can assist you in your real estate search. To find homes like 18007 134th Dr, Sun City West, AZ 85375, you can search
homes for sale in Sun City West , or visit the neighborhood of
Sun City West Unit 8 , or by
85375 . We are here to help when you're ready to
contact us!